Neubau! Modernes Einfamilienhaus in ruhiger, begehrter Wohnlage
Die Immobilie
Pultdachhäuser stehen für zeitgemäßes Design und vielfältige Gestaltungsmöglichkeiten. Ob klassischer Klinker, glatter Putz oder eine geschmackvolle Kombination – Ihrer gestalterischen Freiheit sind keine Grenzen gesetzt.
Dank hoher Drempel und einer sanften Dachneigung wird die Wohnfläche optimal ausgenutzt. Durch die versetzte Anordnung der Haushälften entstehen großzügige Raumkonzepte mit einer lebendigen Struktur – ideal für offene Wohn-, Ess- und Küchenbereiche mit besonderem Flair.
Lassen Sie sich individuell beraten und machen Sie den ersten Schritt zu Ihrem modernen Traumhaus.
Pultdach – ein Ausdruck architektonischer Klarheit und Stil.
Details
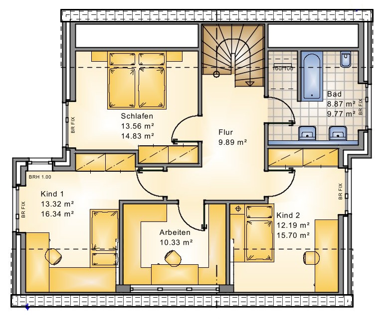
Flächen
- Wohnfläche: 147 m²
- Grundstücksfläche: 454 m²
- Zimmer insgesamt: 6
Zustand & Erschließung
- Baujahr: 2026
- Zustand: projektiert
- Dachform: Pultdach
Sonstiges
Gerne sind wir Ihnen bei einer Finanzierung behilflich, über unsere ortsansässigen Kooperationspartner (Banken) können wir Ihnen ein für Sie individuell abgestimmtes Finanzierungsmodell anbieten.
Hinweis:
Alle Abbildungen in diesem Angebot sind Ausführungsbeispiele und zeigen unter Umständen Aufpreis pflichtige Zusatzleistungen.
Ausstattung
Baubeschreibung AMR – ECO Komfort mit Wärmepumpe, Fußbodenheizung und PV-Anlage.
Massivhaus individuell für Sie gebaut, inkl. Architekten- und individueller Planungsleistungen, Standsicherheitsnachweis, Bauanträge, Primärenergiebedarfsausweis, Regelung aller behördlichen Belange, Fachbauleitung, Energieberatung, Wärmeschutznachweises, Blower-Door Test, Bauleistungs-, Feuer- und Bauherrenhaftpflichtversicherung, Baustrom/WC, Bauschutt Entsorgung.
- Heizungsart: Fußbodenheizung
- Befeuerung: Luft-Wärmepumpe
Energieausweis
- Primärenergieträger: Luft-Wärmepumpe
Lage & Infrastruktur
Das Grundstück befindet sich in einer begehrten Wohngegend im westlichen Teil der lebendigen Stadt Oldenburg, im Stadtteil Wechloy. Diese attraktive Lage bietet eine hervorragende Kombination aus städtischem Komfort und naturnahem Wohnen. Wechloy zeichnet sich durch seine ruhige, grüne Umgebung aus und ist bekannt für seine Vielzahl an Freizeitmöglichkeiten und die Nähe zur Universität Oldenburg.
In unmittelbarer Nähe finden Sie diverse Einkaufsmöglichkeiten, die Ihnen alltägliche Besorgungen erleichtern, sowie eine Reihe von Schulen und Kindergärten, die sich ideal für Familien eignen. Die Anbindung an den öffentlichen Nahverkehr ist ausgezeichnet, was eine schnelle und unkomplizierte Erreichbarkeit der Oldenburger Innenstadt ermöglicht.
Wechloy ist zudem gut in das Verkehrsnetz eingebunden, was Pendler schätzen werden. Die Nähe zur Autobahn ermöglicht eine zügige Anbindung an das Umland und andere Städte der Region. In der Umgebung sind außerdem weitläufige Grünflächen und Erholungsgebiete, die zu ausgedehnten Spaziergängen und Radtouren einladen, zu finden.
Diese Wohnlage kombiniert Ruhe und Erholung mit der Dynamik und den Annehmlichkeiten des urbanen Lebens und stellt somit einen idealen Wohnort für unterschiedliche Lebensstile dar.
Preise
- Kaufpreis: 585.750 €
- Käuferprovision: Provisionsfrei



